На всех моделях интернет-центров Keenetic предусмотрена возможность крепления на стену. На обратной стороне корпуса имеются два специальных отверстия.
NOTE: Важно! Крепежные элементы (саморезы/шурупы и дюбели) в комплектацию интернет-центров Keenetic не входят. Исключение для моделей Orbiter Pro и Voyager Pro, в комплект которых входят 2 самореза с двумя дюбелями для бетонной стены и гипсокартона.
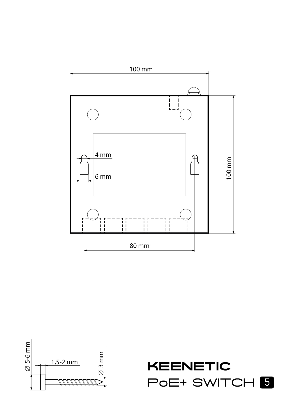
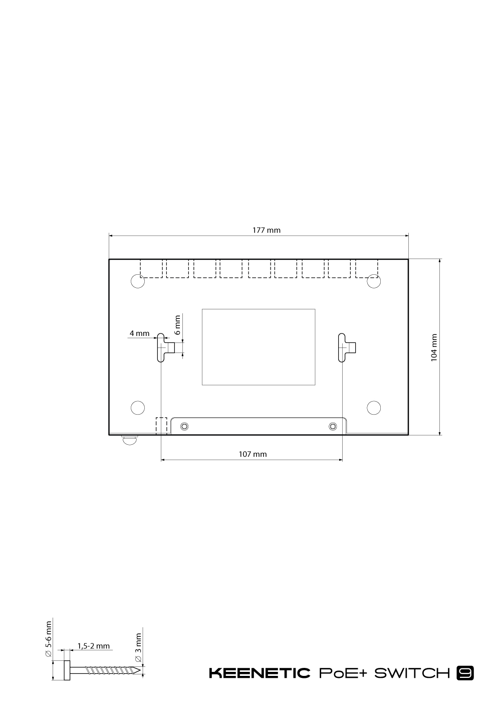
Информация с расстоянием между крепежными отверстиями и характеристиками саморезов:
| Модель |
Расстояние между отверстиями (мм) |
Диаметр шляпки (мм) | Высота шляпки (мм) | Резьба (мм) | Длина резьбы (мм) |
| Giga (KN-1012) | 160 | 6-9 | 1-3 | 3-5 | не менее 20 |
|
Hopper (KN-3811) Sprinter (KN-3711) |
130 | 7-8 | 1-3 | 3-4 | не менее 20 |
|
Peak (KN-2710) Giant (KN-2610) Ultra (KN-1810/1811) Ultra SE (KN-2510) Giga (KN-1010/1011) Giga SE (KN-2410) Hero 4G (KN-2310/2311) Hopper (KN-3810) Sprinter (KN-3710) Hopper DSL (KN-3610) Skipper 4G (KN-2910) Skipper DSL (KN-2112) |
128 | 6-8 | до 1.5-2 | 3-4 | не менее 20 |
|
Viva (KN-1910) Speedster (KN-3012) Launcher DSL (KN-2012) |
75 | 6-8 | до 1.5-2 | 3-4 | не менее 20 |
|
Sprinter SE (KN-3712) Hopper SE (KN-3812) Challenger SE (KN-3911) |
78 | 5.5-7.5 | до 1.5-2 | 3-4 | не менее 20 |
|
Speedster (KN-3010) Duo (KN-2110) Extra (KN-1710/1711/1713) Air (KN-1610/1611/1613) City (KN-1510/1511) DSL (KN-2010) Omni (KN-1410) Lite (KN-1310/1311) Runner 4G (KN-2210/2211/2212) Explorer 4G (KN-4910) |
67 | 5-6 | до 1.5-2 | 3 | не менее 20 |
|
4G (KN-1210/1211/1212) Start (1110/1111/1112) |
62 | 5-6 | до 1.5-2 | 3 | не менее 20 |
|
Starter (KN-1121) Explorer (KN-1621) Launcher (KN-1221) |
62 | 5-6 | до 1.5-2 | 2 | не менее 20 |
| 4G (KN-1213) | 63 | 5-6 | до 1.5-2 | 2 | не менее 20 |
| Extra (KN-1714) | 67 | 5-6 | до 1.5-2 | 2 | не менее 20 |
|
Viva (KN-1913) Speedster (KN-3013) |
67 | 5-6 | до 1.5-2 | 3 | не менее 20 |
|
Orbiter Pro (KN-2810) Voyager Pro (KN-3510) |
82 | 5-6 | до 1.5-2 | 3 | не менее 20 |
| PoE+ Switch 5 (KN-4610) | 80 | 5-6 | до 1.5-2 | 3 | не менее 20 |
| PoE+ Switch 9 (KN-4710) | 107 | 5-6 | до 1.5-2 | 3 | не менее 20 |
Например, для моделей Keenetic Peak, Giant, Ultra, Ultra SE, Giga (KN-1010/1011), Giga SE, Hero 4G, Hopper (KN-3810), Sprinter (KN-3710), Hopper DSL, Skipper 4G, Skipper DSL:
Ниже представлены шаблоны крепления на стену (в формате pdf) для всех актуальных моделей:
- Keenetic 4G (KN-1210/1211/1212)
- Keenetic Air (KN-1610/1611/1613)
- Keenetic City (KN-1510/1511)
- Keenetic DSL (KN-2010)
- Keenetic Duo (KN-2110)
- Keenetic Extra (KN-1710/1711/1713)
- Keenetic Giant (KN-2610)
- Keenetic Giga (KN-1010/1011)
- Keenetic Giga SE (KN-2410)
- Keenetic Ultra SE (KN-2510)
- Keenetic Hero 4G (KN-2310)
- Keenetic Hero 4G+ (KN-2311)
- Keenetic Launcher DSL (KN-2012)
- Keenetic Lite (KN-1310/1311)
- Keenetic Omni (KN-1410)
- Keenetic Peak (KN-2710)
- Keenetic Runner 4G (KN-2210)
- Keenetic Runner 4G (KN-2211)
- Keenetic Skipper 4G (KN-2910)
- Keenetic Skipper DSL (KN-2112)
- Keenetic Speedster (KN-3010)
- Keenetic Speedster (KN-3012)
- Keenetic Start (KN-1110/1111/1112)
- Keenetic Ultra (KN-1810)
- Keenetic Ultra (KN-1811)
- Keenetic Viva (KN-1910)
- Keenetic Viva (KN-1912)
- Keenetic Hopper (KN-3810)
- Keenetic Hopper DSL (KN-3610)
- Keenetic Sprinter (KN-3710)
- Orbiter Pro (KN-2810)
- Voyager Pro (KN-3510)
- Keenetic PoE+ Switch 9 (KN-4710)
- Keenetic PoE+ Switch 5 (KN-4610)
TIP: Примечание: Крепление Orbiter Pro / Voyager Pro к стене и потолку.
Интернет-центры Orbiter Pro и Voyager Pro, благодаря прилагаемому монтажному комплекту, вы можете установить на стене, а также монолитном или подвесном потолке.
Для крепления к монолитной стене или потолку:
1. Приложите монтажное основание к планируемому месту установки.
2. Отметьте две точки для отверстий под крепеж. Просверлите два отверстия диаметром 6 мм в отмеченных позициях.
3. Вставьте ребристые пластиковые дюбели в отверстия или, в случае гипсокартонной поверхности, вкрутите дюбели с внешней резьбой с помощью отвертки.
4. Закрепите монтажное основание на стене или потолке, вкрутив саморезы в дюбели.
5. Подсоедините кабель(и) Ethernet и/или адаптер питания к интернет-центру.
6. Закрепите интернет-центр на монтажном основании, двигая его по направлению стрелок до фиксации.
Для крепления на потолочный Т-образный профиль:
1. Закрепите первый зажим на монтажном основании винтом. В зависимости от размера Т-образного профиля используйте положение 9/16" (14,3 мм) или 15/16" (23,8 мм).
2. Закрепите второй зажим на монтажном основании. Не затягивайте винт до конца.
3. Расположите монтажное основание на Т-образном профиле, уперев первый зажим в горизонтальную полку профиля и придвинув к ней второй зажим. Затяните винт второго зажима.
4. Зафиксируйте монтажное основание на профиле двумя оставшимися винтами.
5. Подсоедините кабели к интернет-центру.
6. Закрепите интернет-центр на монтажном основании, двигая его по направлению стрелок до фиксации. Спрячьте выступающие части кабелей за устройством.